Massage Studio – SPA

Project Overview

Style

Contemporary Mediterranean
Scope:

Wellness Studio Design — Modern, Feminine & Serene

For this project, we had the pleasure of designing a wellness studio for a Brazilian client who specializes in premier lymphatic-based treatments. From the very beginning, the intention was to create a space that would truly reflect the essence of her work—light, soothing, elegant, and deeply restorative. The environment needed to support not only the technical requirements of a professional wellness practice, but also the emotional experience of clients seeking care, relaxation, and renewal.

The overall design concept blends modern femininity with soft architectural elements, creating a refined yet welcoming atmosphere. Arches were introduced to soften transitions between spaces, while gentle curves and flowing drapery add movement and a sense of calm. These elements work together to create a space that feels fluid and organic, reinforcing the restorative nature of the treatments offered. The selected color palette is light and balanced, paired with materials that feel clean, tactile, and timeless, ensuring the studio feels serene without appearing sterile.

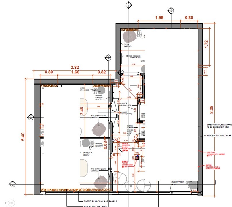
One of the primary challenges of this project was working within a compact footprint while accommodating a demanding spatial program. The client required a specific number of treatment rooms, generous storage solutions, and a reception area that felt open, comfortable, and well-proportioned. Careful planning was essential to ensure every square meter was used efficiently without compromising circulation, privacy, or the overall sense of calm. Through multiple layout studies and design iterations, we were able to optimize the space and create a layout that feels intuitive, functional, and visually cohesive.

Client collaboration played a crucial role in the success of this project. The client was highly engaged throughout the process and open to exploring different options and design solutions. Together, we evaluated alternatives, refined layouts, and adjusted details until we reached a final proposal that aligned with both operational needs and aesthetic goals. This collaborative approach allowed us to push the design further while ensuring it remained true to the client’s vision and brand identity.

Another significant challenge was the project timeline. Due to bureaucratic delays outside of the design team’s control, the delivery schedule became tighter than initially planned. This required careful coordination, decisive design development, and close communication with all parties involved. Despite these constraints, the project was delivered on time and with great success, demonstrating the importance of structured planning and flexibility in execution.

Budget management was also a key consideration throughout the process. From the early design stages, materials, finishes, and construction solutions were selected with cost-efficiency in mind, without compromising quality or visual impact. Through thoughtful value engineering and clear prioritization, the project was delivered fully within the client’s approved budget, reinforcing that refined design and financial responsibility can coexist.

Ultimately, this wellness studio was designed to feel both professionally polished and warmly feminine—a space where clients feel immediately welcomed, safe, and cared for. It is a place where architecture, interior design, and well-being come together seamlessly, supporting both the practitioner’s work and the client’s journey. The result is a thoughtfully crafted environment that reflects beauty, balance, and intention in every detail.

Material and Textures __

We explored the senses in this project: flowy drapes, cozy shaggy rugs, nature wallpaper, rain sound, light subtle arches, delicate wall paneling, and warm lights. All with a promess to transport the client to another place far away from the hustle and bustle if the city.