Classic Style with a Confident Twist

Project Overview

Style

Classic
Scope:

This renovation project is unfolding as a complete transformation of the home, carefully executed in phases to ensure quality, precision, and a cohesive final result. While the journey is still ongoing, significant milestones have already been achieved, and the evolution of the space is becoming more visible and exciting with each step.

Upstairs, we have completed three out of the four bedrooms, each treated as a full renovation rather than a simple update. These rooms were reimagined from the ground up, with a strong focus on comfort, functionality, and a refined aesthetic that reflects the family’s lifestyle. One of the key upgrades throughout this level was the installation of new wooden flooring, which immediately elevated the atmosphere of the spaces. The natural texture and warmth of the wood bring continuity to the bedrooms, creating a sense of calm and timelessness while also enhancing durability for everyday family life.

In addition to the bedrooms, all four upstairs bathrooms have undergone a complete renovation. This included redesigning layouts where necessary, updating finishes, and improving both lighting and functionality. Each bathroom was approached individually, allowing for subtle variations in mood and materiality while maintaining a cohesive design language throughout the floor. The result is a collection of spaces that feel modern, elegant, and thoughtfully tailored to their users.

Downstairs, the transformation is equally impactful and sets the stage for the next major phase of the project. One of the most significant architectural changes was the introduction of large new windows in the dining room. By opening up the facade, we dramatically increased natural light and improved the visual connection between the interior and the exterior. This intervention not only enhances the spatial experience but also reshapes how the family interacts with the dining area, turning it into a brighter, more inviting place for daily meals and gatherings.

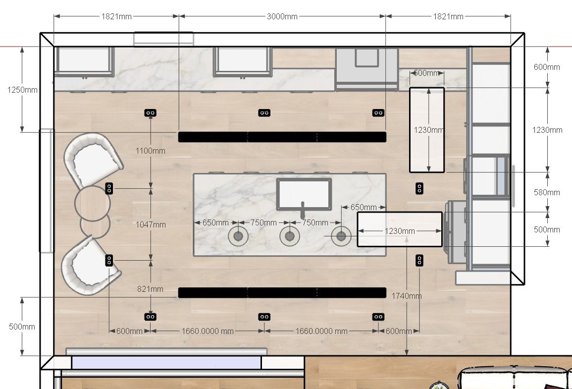
The kitchen, which previously no longer met the functional or aesthetic needs of the family, was completely demolished in preparation for a full redesign. This space is now ready to receive entirely new custom joinery, designed to optimize storage, workflow, and visual harmony with the rest of the house. The upcoming kitchen installation will be a defining element of the renovation, anchoring the downstairs areas and reinforcing the home’s renewed identity.

Once the kitchen joinery is completed, the project will move into the next stage: redoing the flooring on the ground floor, along with the powder room and laundry area. These spaces, though often secondary, are being treated with the same level of care and intention as the main living areas, ensuring that no detail is overlooked.

While there is still work ahead, the foundation has been firmly laid. Each completed phase brings the project closer to its final vision, and all elements are gradually coming together in a cohesive and beautiful way. This renovation is not just about updating finishes, but about reshaping how the home functions and feels—creating a space that is both elegant and deeply connected to the family’s daily life.

Material and Textures __