For this project, we were invited to redesign two key areas of our client’s home — the master bedroom and the home office — bringing comfort, warmth, and personality into spaces that are part of everyday life.
The master bedroom was envisioned as a retreat — a place that feels like a warm hug after a long day out and about. Soft textures, calm tones, and layered lighting create a soothing atmosphere that invites relaxation and connection.
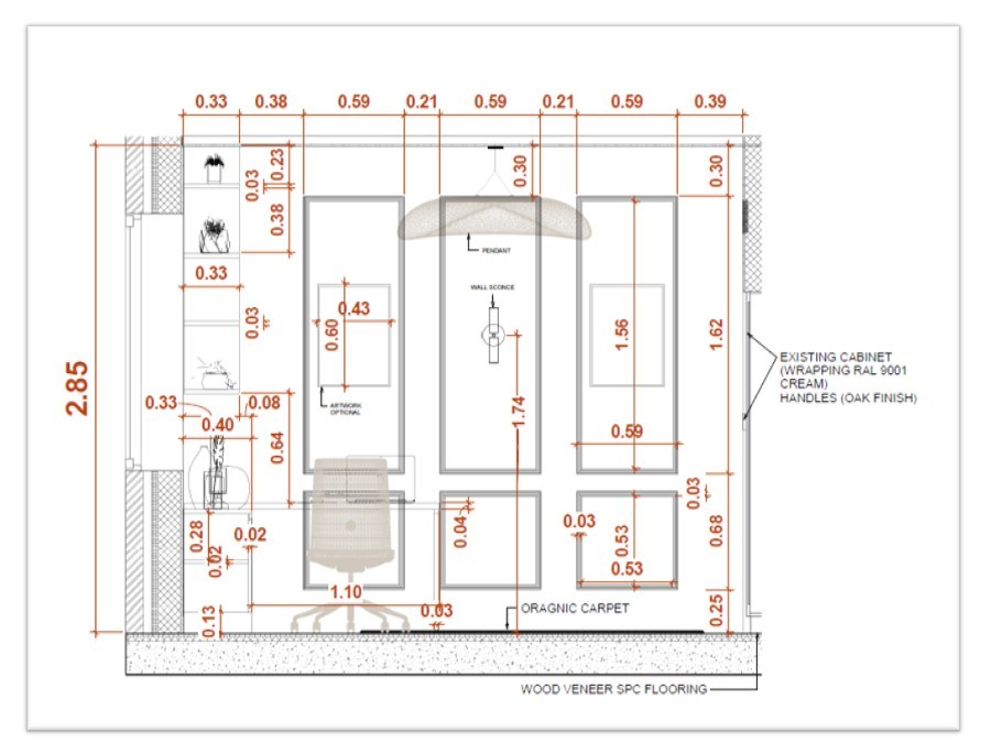
The home office, once cold, dark, and uninviting, has been completely reimagined. Natural light, balanced materials, and thoughtful design details now make it a space that inspires focus and creativity throughout the day.
Every choice — from finishes to furniture — was guided by our goal of blending comfort, functionality, and aesthetic harmony, transforming these rooms into spaces that truly reflect the client’s lifestyle.